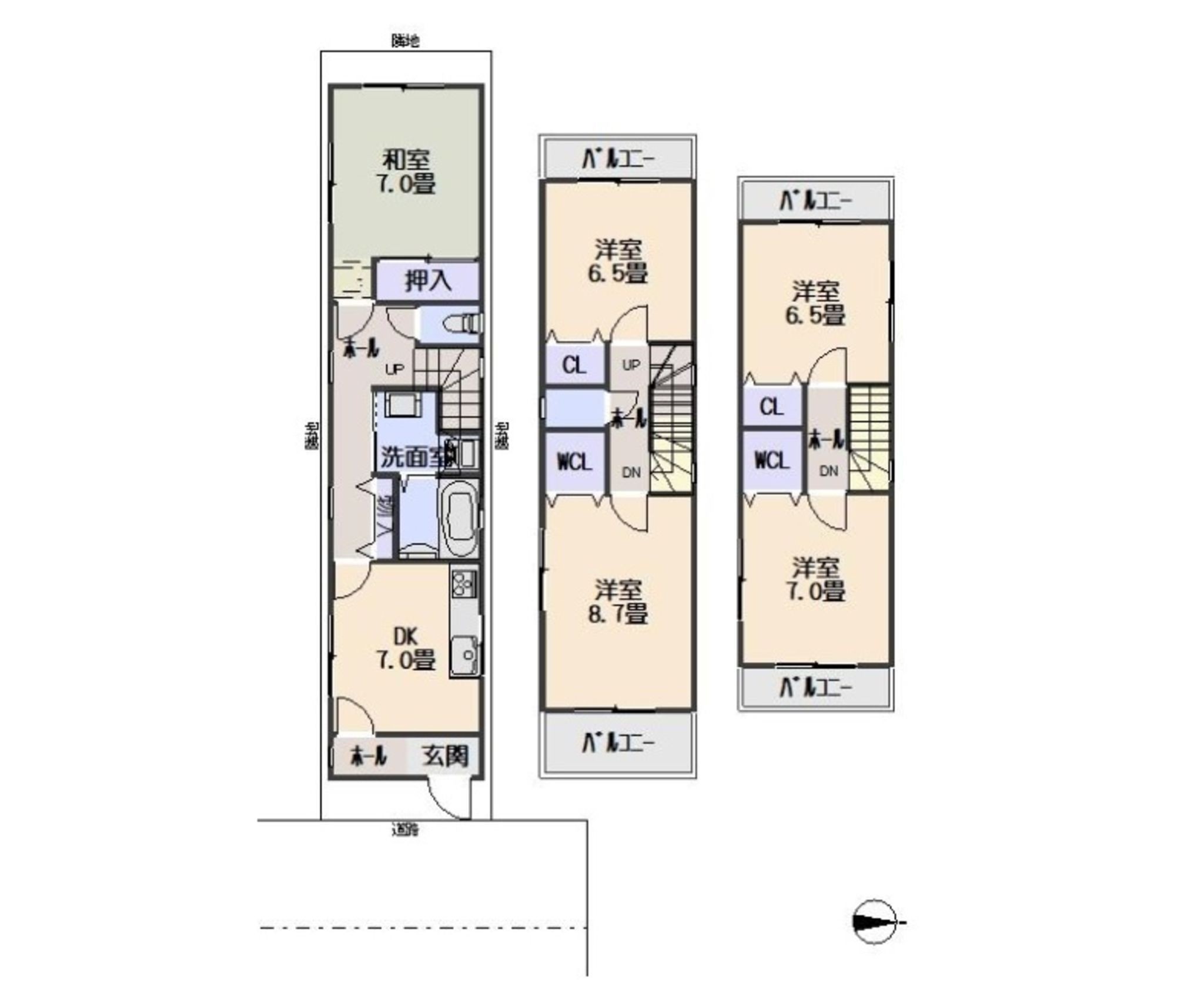
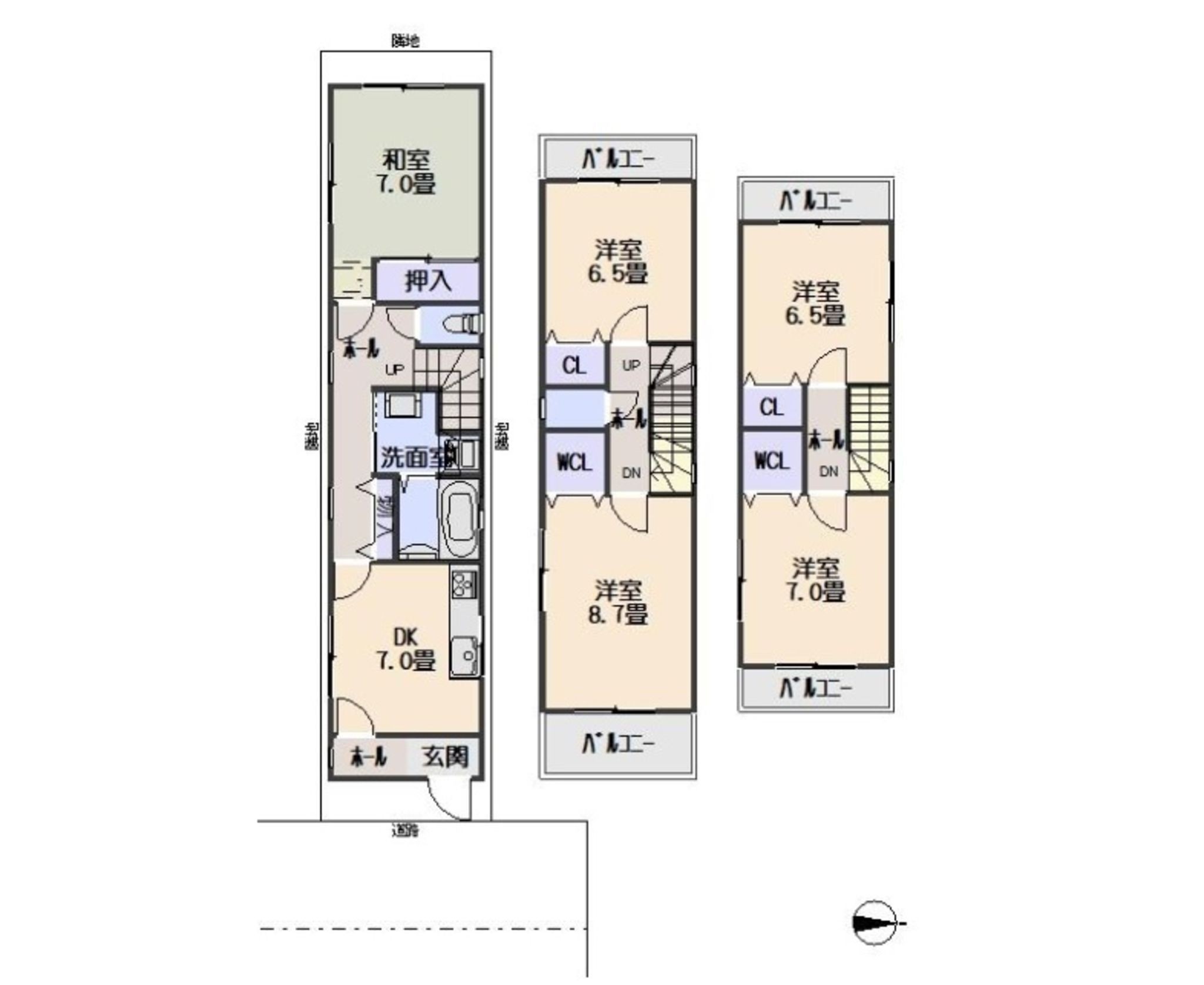
リフォームプランをご紹介します
この物件のリフォームプランを簡単ステップで
シミュレーションできます。
この物件へのお問い合わせ
BLOG Related posts 移住BLOG関連記事
2024.09.05
床暖房のリフォーム費用は削減できる?毎月の電気代や注意点も紹介
2023.03.08
ガレージ付き物件は安心で便利!愛車を保管するための物件の選び方や注意点を解説!
2023.02.09
大阪に住みながら2拠点生活は叶うのか?成功させる3つのポイントを解説
2022.11.18
自然と日本文化の街、瀬戸市で田舎暮らしを楽しもう!
2022.10.28
【後編】移住の“先輩”インタビュー 日々の暮らしの積み重ねが、描いていた家族の未来に近づけてくれた|横山暁一さん・恵理さん(名古屋→長野県塩尻市)
2022.10.21
和室をおしゃれにリフォームしたい!費用相場はいくら?
2022.09.13
押入れをおしゃれなクローゼットにリフォーム!費用と注意点とは?
2022.09.08
リフォームとリノベーションはどちらがよい?特徴や費用相場も解説
