• 写真・間取り
  • 地図

物件詳細情報

物件番号  15089
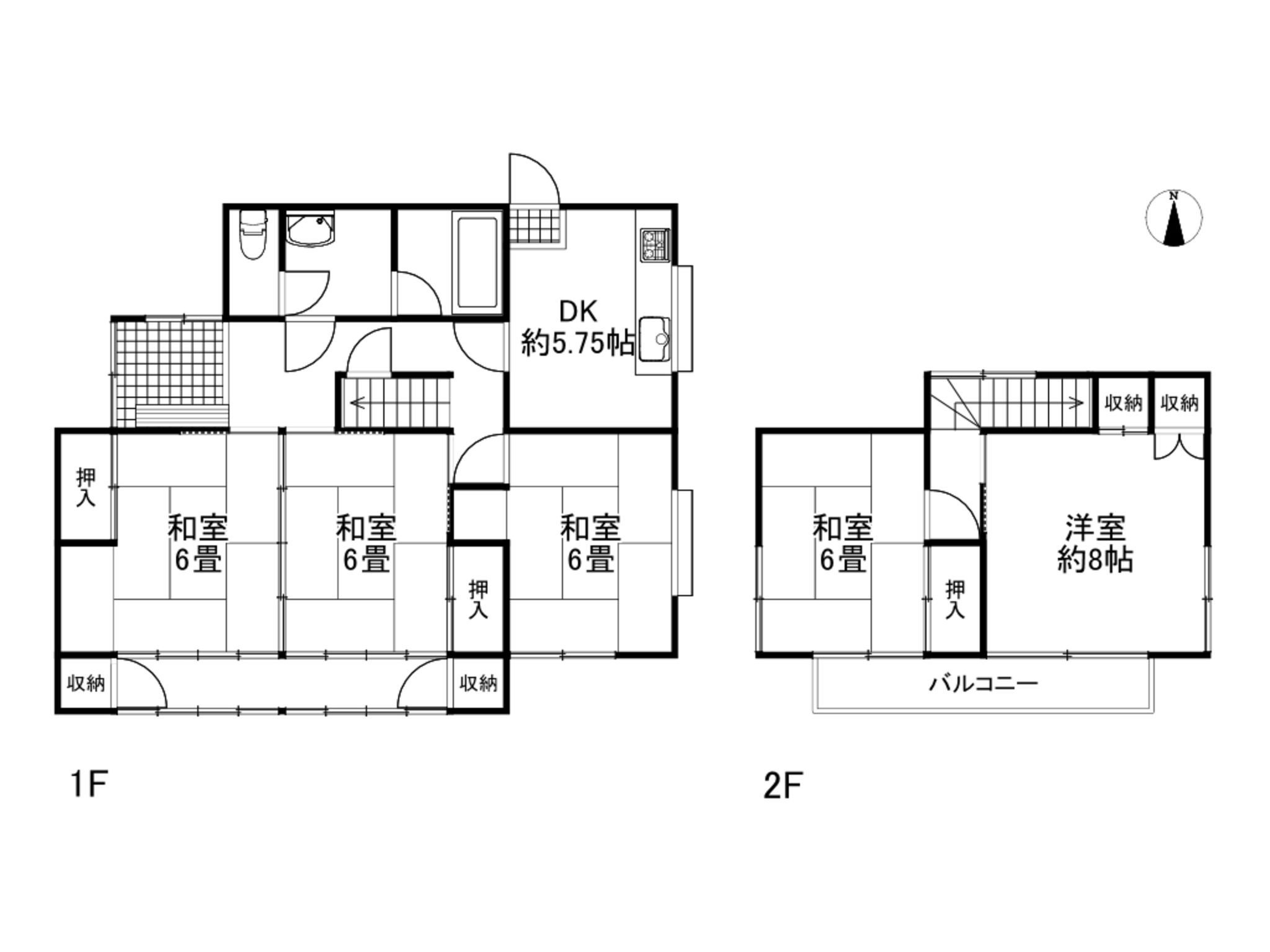
間取り  5DK
交通  JR大糸線 豊科駅 まで 徒歩42分
(豊科駅:3300m)車で 9分
土地面積  267.18㎡
建物面積  103.50㎡
築年数  築44年 (1981年3月)
建ぺい率  60%
容積率  200%
土地権利  所有権
構造および階数  木造 地上2階建
小学校区  堀金
中学校区  堀金
私道負担 
地目  宅地
現況  空家
引渡時期  即時
駐車場 
上水道  公共
下水道  公共
ガス  個別
都市計画  未線引き
用途地域  無指定
設備・条件  電気、水道、プロパンガス、風呂、トイレ、給湯、バス・トイレ別、庭、駐車場3台以上
備考  2025/12 内装リフォーム完了予定・キッチン・浴室・トイレ・壁・床・全室・洗面所・給湯器・給排水管・建具・全面
2025/12 外装リフォーム完了予定・外壁
2025/12 リノベーション完了予定

取引態様  仲介

Search

特徴・趣味

エリア

  • 北海道
  • 東北
  • 関東
  • 中部
  • 近畿
  • 中国・四国
  • 九州

間取り

  • 1R〜1LDK
  • 2K〜2LDK
  • 3K〜3LDK
  • 4K〜4LDK
  • 5K〜5LDK
  • その他

敷地面積

建物面積

価格

物件種別

フリーワード

検索条件をクリア

この物件へのお問い合わせ

0120-503650

0120-503650

《 サンプロ不動産株式会社 松本店 》  中元
長野県松本市村井町南4-1-4

New property 新着物件

View All

この物件へのお問い合わせ

0120-503650

0120-503650

《 サンプロ不動産株式会社 松本店 》  中元
長野県松本市村井町南4-1-4