• 写真・間取り
  • 地図

物件詳細情報

物件番号  15103
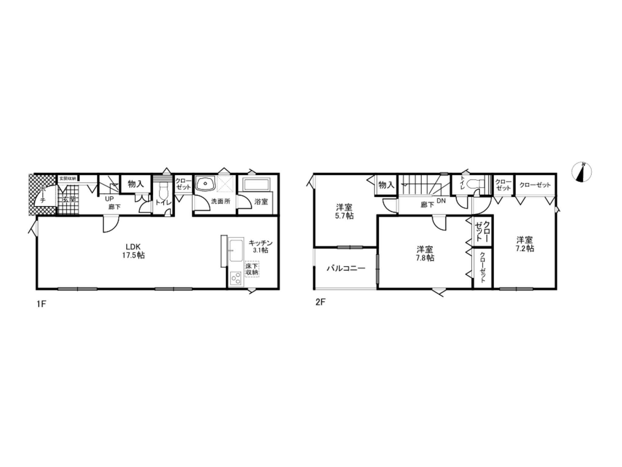
間取り  3LDK
交通  JR篠ノ井線 田沢駅 まで 徒歩13分
(田沢駅:970m)車 3分
土地面積  198.37㎡
建物面積  95.98㎡
築年数  - (2025年11月)
建ぺい率  60%
容積率  200%
土地権利  所有権
構造および階数  木造 地上2階建
小学校区  豊科東
中学校区  豊科北
私道負担 
地目  宅地
現況  建築中
引渡時期  予定
駐車場 
上水道  公共
下水道  公共
ガス  個別
都市計画  未線引き
用途地域  第一種住居地域
設備・条件  電気、トイレ2箇所、浴室乾燥機、温水洗浄便座、システムキッチン、駐車場3台以上、TVモニタ付きインターホン・バス1坪以上・洗髪洗面化粧台・複層ガラス
備考  ※敷地内に電柱及び支線が入る場合があります。
※図面と現況が相違する場合は、現況を優先とします。
【建築確認番号】第R07SHC112057号 令和7年8月8日
取引態様  仲介

Search

特徴・趣味

エリア

  • 北海道
  • 東北
  • 関東
  • 中部
  • 近畿
  • 中国・四国
  • 九州

間取り

  • 1R〜1LDK
  • 2K〜2LDK
  • 3K〜3LDK
  • 4K〜4LDK
  • 5K〜5LDK
  • その他

敷地面積

建物面積

価格

物件種別

フリーワード

検索条件をクリア

この物件へのお問い合わせ

0120-503650

0120-503650

《 サンプロ不動産株式会社 松本店 》  中元
長野県松本市村井町南4-1-4

New property 新着物件

View All

この物件へのお問い合わせ

0120-503650

0120-503650

《 サンプロ不動産株式会社 松本店 》  中元
長野県松本市村井町南4-1-4