• 写真・間取り
  • 地図

物件詳細情報

物件番号  15293
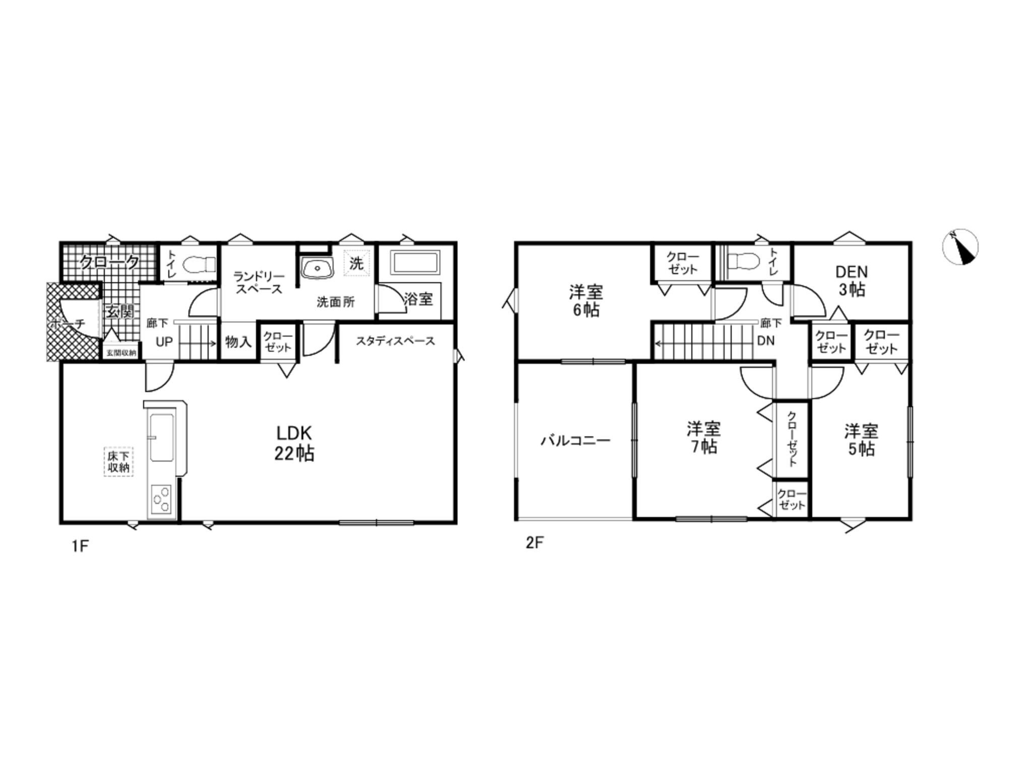
間取り  3LDK
交通  JR篠ノ井線 村井駅 まで 徒歩5分
(村井駅:350m)車 1分
「村井駅バス停(ぐるっと)(のるーと)」まで徒歩4分(300m)
土地面積  171.47㎡
建物面積  102.06㎡
築年数  - (2026年3月)
建ぺい率  60%
容積率  200%
土地権利  所有権
構造および階数  木造 地上2階建
小学校区  芳川
中学校区  筑摩野
私道負担 
地目 
現況  建築中
引渡時期  予定
駐車場 
上水道  公共
下水道  公共
ガス  都市ガス
都市計画  市街化区域
用途地域  第一種住居地域
設備・条件  温水洗浄便座、3口以上コンロ、浴室暖房
備考  【建築確認番号】第R07SHC120580号
・建物面積に別途ルーフバルコニー約9.72平米有り 
・敷地内に電柱有り
取引態様  仲介

Search

特徴・趣味

エリア

  • 北海道
  • 東北
  • 関東
  • 中部
  • 近畿
  • 中国・四国
  • 九州

間取り

  • 1R〜1LDK
  • 2K〜2LDK
  • 3K〜3LDK
  • 4K〜4LDK
  • 5K〜5LDK
  • その他

敷地面積

建物面積

価格

物件種別

フリーワード

検索条件をクリア

この物件へのお問い合わせ

0120-503650

0120-503650

《 サンプロ不動産株式会社 松本店 》  山中
長野県松本市村井町南4-1-4

New property 新着物件

View All

この物件へのお問い合わせ

0120-503650

0120-503650

《 サンプロ不動産株式会社 松本店 》  山中
長野県松本市村井町南4-1-4